Проект расположен на крайнем участке, примыкающем к лесному массиву. Перед домом открывается панорамный вид на горный рельеф, в то время как приватная часть территории ориентирована в сторону леса. Такое положение определило пространственную структуру всей застройки.

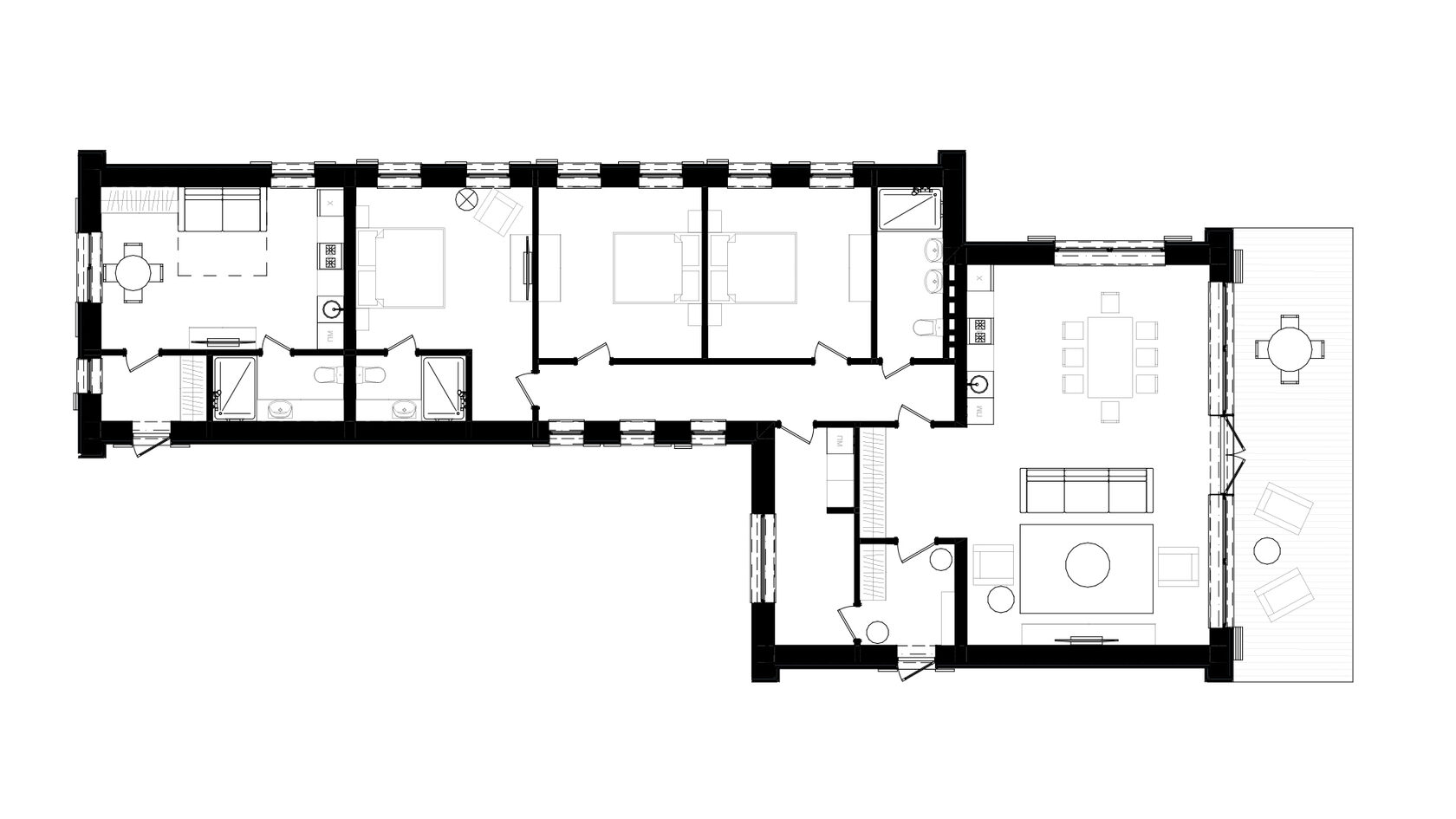
Жилой дом площадью 170 м² решён как одноэтажный протяжённый объём, встроенный в природный контекст. Общественная зона раскрыта в сторону панорамы через панорамное остекление и террасу. Спальные помещения ориентированы в сторону леса, формируя спокойную и изолированную среду.

В структуру дома интегрирован автономный блок для родителей. Планировочное решение позволяет объединить несколько поколений в рамках одной территории, сохраняя независимость каждого жилого пространства.

Баня площадью 90 м² и летняя кухня с бассейном размещены как самостоятельный объём в глубине участка. Пространство между основным домом и банным блоком формирует открытую композиционную ось — центр летней жизни и ежедневных сценариев взаимодействия.

Дополнительно приобретённая часть участка используется под виноградник, а нижняя зона территории отведена под размещение пасеки. Ландшафт становится частью общей архитектурной системы, а не фоном для здания.

Проект демонстрирует подход к загородной архитектуре как к формированию комплексной жилой среды - где несколько функциональных объёмов и ландшафт объединяются в целостную пространственную структуру.
Частный жилой комплекс на опушке леса. Азовская

Факты о проекте
Год проектирования: 2021
Локация: станица Азовская, Краснодарский край
Площадь жилого дома: 170 м²
Площадь бани: 90 м²
Площадь участка: 19,9 соток
Этажность: 1
Количество спален: 3
Дополнительный блок: автономная квартира для родителей
Дополнительные объекты: летняя кухня с бассейном, виноградник
Основной материал фасада: облицовочный кирпич (полуригельный формат)
Стадия: рабочий проект, реализован
Автор: Архитектурная студия Романа Санкова