Проект расположен на участке с выраженным рельефом и панорамным видом на горы со стороны главного фасада. С тыльной стороны открывается вид на лесной массив, что формирует два различных пространственных направления и определяет характер планировочного решения.

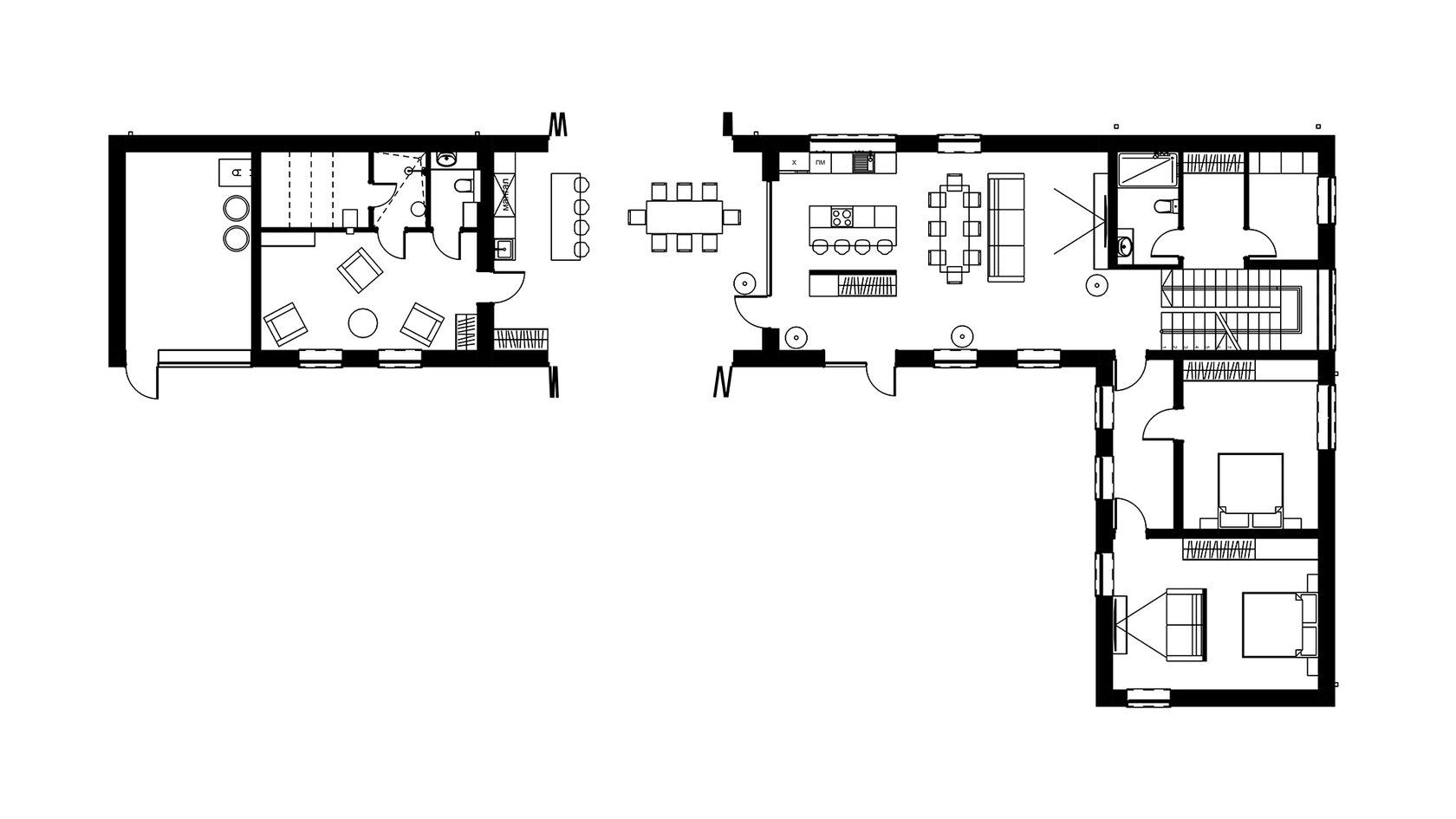
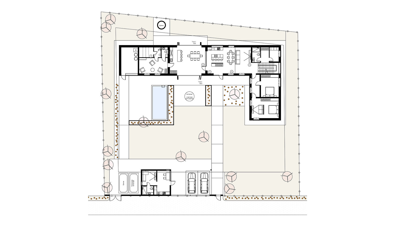
Архитектура организована вокруг внутреннего двора, который становится центральным пространственным ядром дома. П-образная композиция позволяет одновременно раскрыть общественные помещения в сторону горных панорам и создать защищённую приватную среду внутри участка.

Основной объём выполнен из кирпича ручной формовки. Фактурная поверхность кирпича формирует плотную материальную оболочку здания и подчёркивает связь архитектуры с природным контекстом.

Верхний уровень решён в виде лаконичного бетонного объёма - горизонтальной «шапки», объединяющей композицию и усиливающей её геометрию. Контраст массивной кирпичной основы и строгого монолитного объёма формирует выразительный, но сдержанный архитектурный образ.

Рельеф интегрирован в структуру дома: уровни аккуратно вписаны в перепад высот, что позволяет сохранить естественную геометрию участка. Панорамное остекление и террасы связывают внутренние пространства с горами и лесом, делая природное окружение частью архитектурного сценария.
Частный жилой дом с внутренним двором

Факты о проекте
Год проектирования: 2023
Общая площадь: 280 м²
Площадь участка: 15 соток
Этажность: 2
Количество спален: 3
Основные материалы: кирпич ручной формовки, монолитный бетон
Статус: рабочий проект / реализация
Автор: Архитектурная студия Романа Санкова